ГлавнаяКаталог Коммерческая земля — Мира проспект, 167, к 4

Мира проспект, 167, к 4, 8555.00 кв.м

69 000 000 ₽
Площадь: 8555.00кв.м
8 065 ₽/
Парфенова Евгения
Специалист
или оставьте ваш номер,
и я перезвоню в течение 5 минут
Нажимая на кнопку, вы даете своё согласие на обработку персональных данных и соглашаетесь с политикой конфиденциальности
Компания "Регион Бизнес Недвижимость "
Предлагает приобрести, земельный участок в собственности под строительство многоквартирного жилого дома.
Имеется проект, ТУ, договор на электричество.
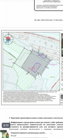
Кадастровый номер земельного участка 55:36:030120:15.
Виды разрушенного использования смотрите в фото. Возможно строительство логистического центра или складского комплекса.
Звоните, ответим на все, ваши вопросы.
Арт. 134310027
Расположение

Мира проспект, 167, к 4

Похожие объекты

Посмотреть другие объявления в этой категории